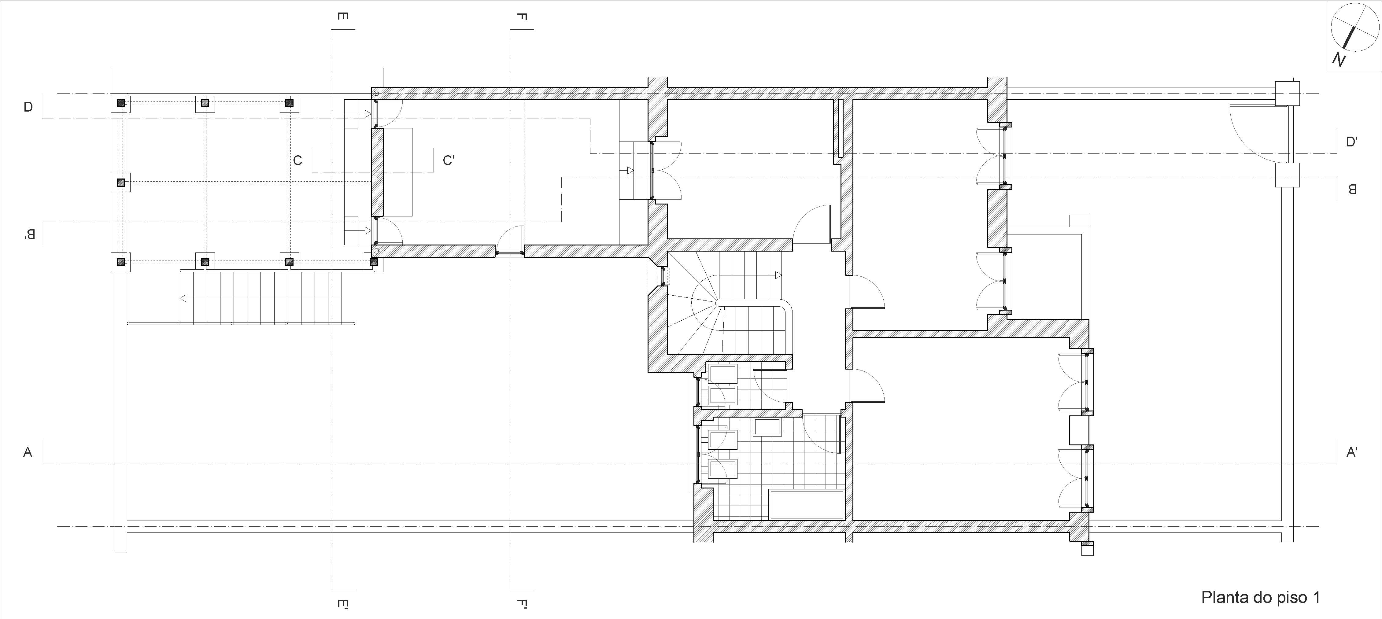
Casquilho House - Lisboa - Portugal (2017)